top of page

provider healthcare
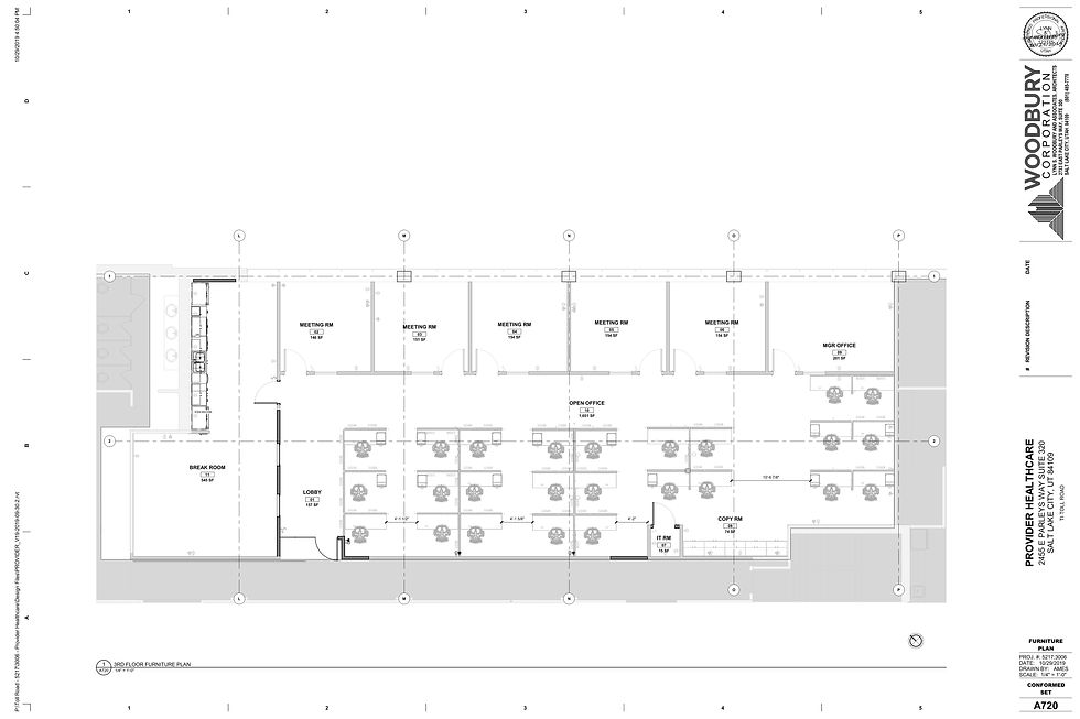
I worked on this project while working for Woodbury Corp. This page includes images of the Construction Document set I developed for this assignment, demonstrating my ability to comprehend and comply with local and federal codes. This set showcases my expertise in creating floor plans, reflected ceiling plans, elevations, detail drawings, finish floor plans, and schedules.

19.10.29 PROVIDER HEALTH CONFORM SET Page 001

19.10.29 PROVIDER HEALTH CONFORM SET Page 002

19.10.29 PROVIDER HEALTH CONFORM SET Page 012

19.10.29 PROVIDER HEALTH CONFORM SET Page 001
1/12
bottom of page
