top of page

Castle & Cooke Denver
The work for the Denver Castle & Cooke was done during my tenure at Western Interior Services. Below is an example of the OTG Purchase Order that I wrote for this project. This PO has had pricing, discount, and contact information redacted. Other venders we ordered from on this job included AIS, ESI, SOI, Wayfair, and All In Office Installation for Receiving, Delivering and Installing the product
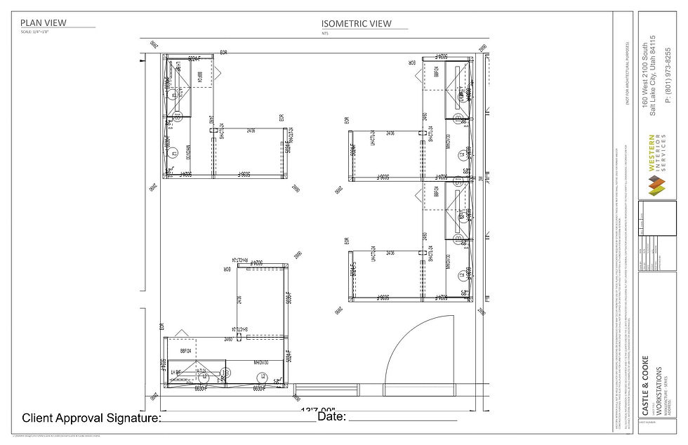
This page also includes the installation set and a BOM showcasing furniture plans that were drawn and developed in CET and Spec.

22.03.31 CET Report Castle & Cooke Denver

22.03.31 WORKSTATIONS PRINT - Castle & Cooke

Workstations Pricing quote only Page 004

22.03.31 CET Report Castle & Cooke Denver
1/6
bottom of page



